详细内容

云南悦莲庄民宿

泸沽湖悦莲庄达布墅院位于美丽神秘的泸沽湖大落水摩梭古村落,酒店依山傍水而立,临近泸沽湖客运站,交通便利!
泸沽湖悦莲庄达布墅院前院靠湖,后院望山,晨起静心品茗眺望烟雾缭绕的格姆女神山,亦或临湖听风观景发呆,春望格姆女神山皑皑白雪,夏看纯白的水性杨花铺满湖面,秋赏深邃浩瀚星空,冬观西伯利亚海鸥在湖面上悠然翻腾,切身体会世外仙境。泸沽湖悦莲庄达布墅院装修集本地摩梭族风情和北欧现代混搭风格,别具匠心的人性化设计为你营造舒适温馨的居住环境。房间标配有中央空调,独立音响系统、品牌智能卫浴,高速无线网络,智能电视等,独具特色的智能恒温马桶、进口乳胶床垫,定制星级酒店高织床品,榻榻米品茶、宜家懒人躺椅、仙维娜香氛洗漱套装,星空阳台,给您私人定制般的舒心享受。酒店有停车场,花园小院,酒吧台和图书墙,早餐厅。最宜品茶,看书,发呆。周到细致的服务,为你的旅行生活增添更多快乐!























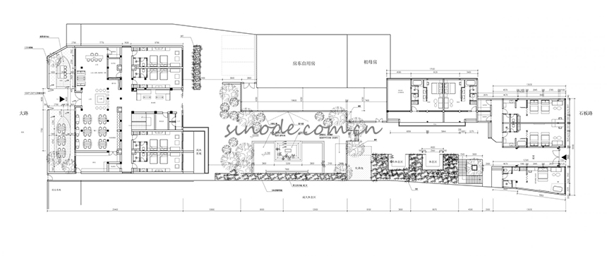
平、立面图:









联系我们
更多
联系我们
更多
联系我们
更多

Copyright 2023 广东鑫诺家具实业有限公司 版权所有  粤ICP备19018250号-4

友情链接:www.gdsinode.com  

本站部分图片来源互联网,如有侵权请速告知,我们将会在24小时内删除


  • 电话直呼

    • 400-966-1655
  • 客服微信

技术支持: 亿川科技 | 管理登录
seo seo