详细内容

大理漫山一色民宿

大理缦山一色海景酒店坐落于洱海临线海边,环海东路旅游交通线与苍山及大理古城的交通枢纽位置,依托独特地势拥有高达270度的大广角山水极景视野。酒店近邻天镜阁、小普陀、金梭岛、洱海公园、双廊古镇、海洋馆,可直达机场、火车站及客运站,并配备专线前往大理古城、喜洲古镇、鸡足山、风车山、周城扎染及三塔等热度景点。
酒店由美国Contract年度室内奖获得者匠心设计,将环洱海沿线一汪碧水、一抹苍山的景致,与现代酒店轻奢级身心体验相融合,既配备美国金可儿床垫、斯得福订制床品、英国戴森吹风机、意大利Acca Kappa洗漱品等****顶配设施,又打造了洱海山水泳池、洱海山水天梯、洱海山水餐厅、洱海山水秋千、网红三生石等一系列潮流化打卡景点,并提供干烧洱海桂鱼、白族爆炒牛肉、土法蒜香排骨、原生态杆菌炒肉等本土特色菜品。





















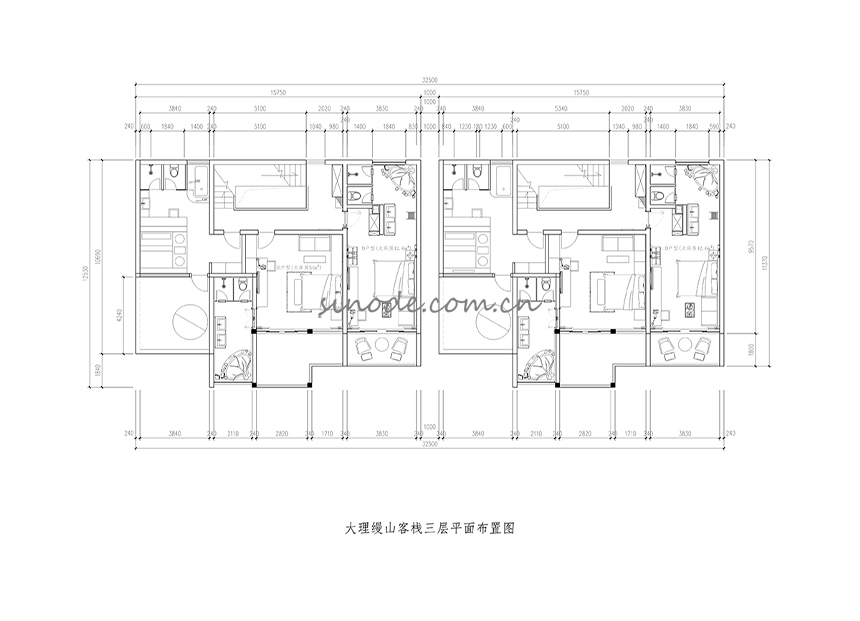
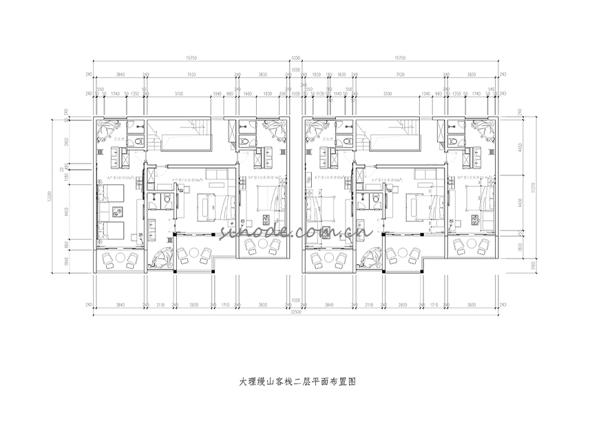
平、立面图:











联系我们
更多
联系我们
更多
联系我们
更多

Copyright 2023 广东鑫诺家具实业有限公司 版权所有  粤ICP备19018250号-4

友情链接:www.gdsinode.com  

本站部分图片来源互联网,如有侵权请速告知,我们将会在24小时内删除


  • 电话直呼

    • 400-966-1655
  • 客服微信

技术支持: 亿川科技 | 管理登录
seo seo