详细内容

成都气质民宿

等着你厌倦了城市的喧嚣,来这里寻找宁静和温馨!让你与家人共度难忘时光。静心享受每一个清晨的阳光,细心体验每一个黄昏的余晖,这就是民宿生活的诗和远方。















剖面图:



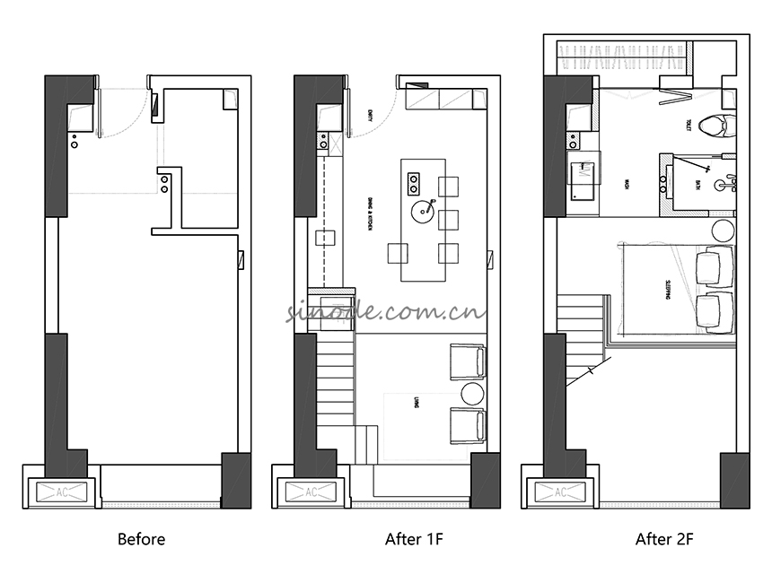
平面图:






联系我们
更多
联系我们
更多
联系我们
更多

Copyright 2023 广东鑫诺家具实业有限公司 版权所有  粤ICP备19018250号-4

友情链接:www.gdsinode.com  

本站部分图片来源互联网,如有侵权请速告知,我们将会在24小时内删除


  • 电话直呼

    • 400-966-1655
  • 客服微信

技术支持: 亿川科技 | 管理登录
seo seo