详细内容

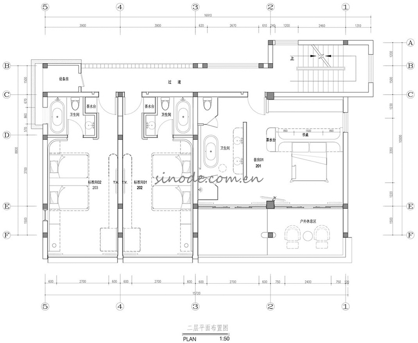
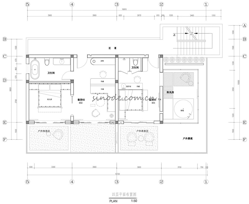
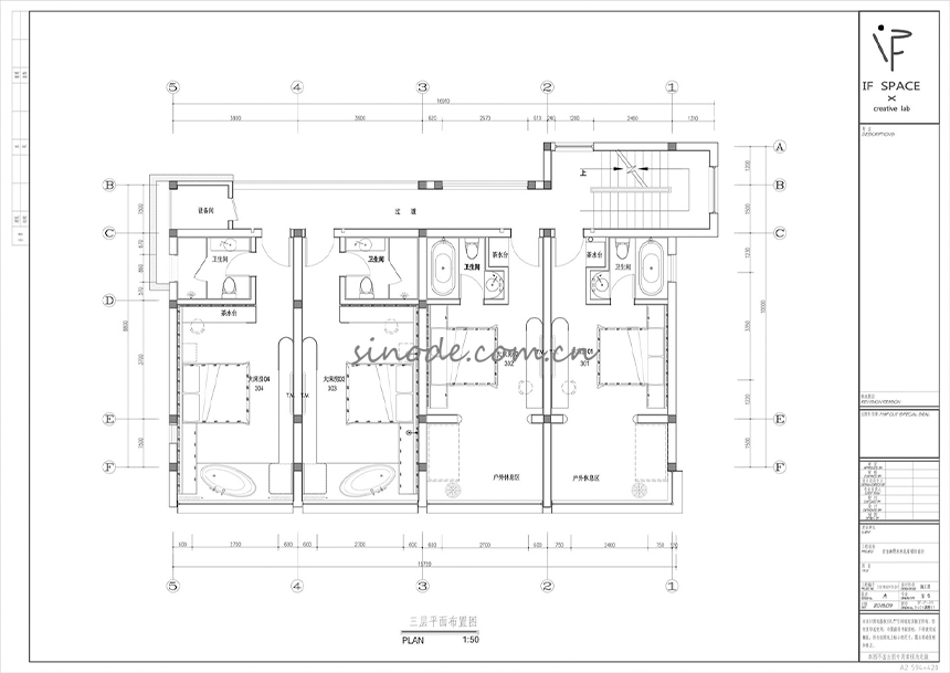
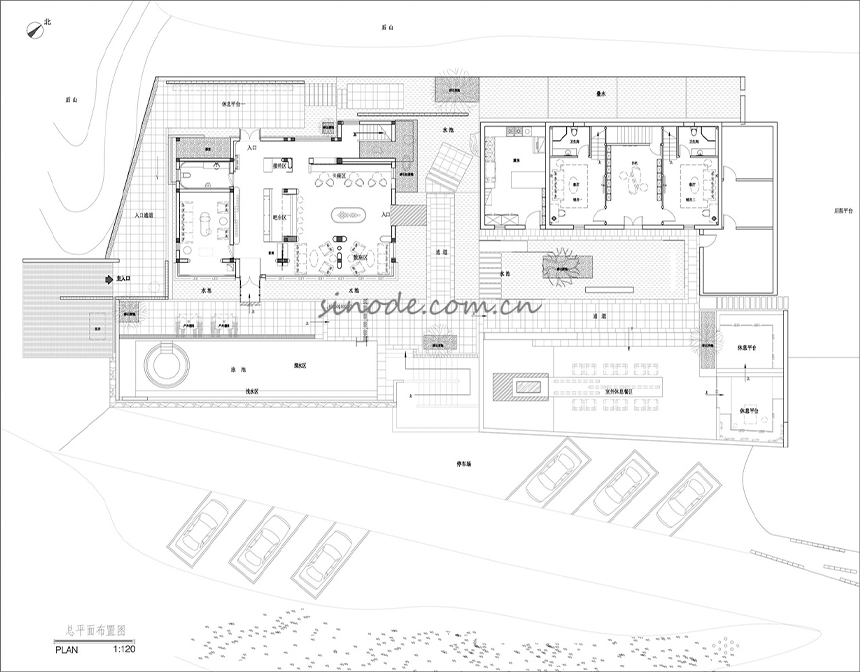
浙江木野民宿

远离城市喧嚣,回归自然,这家民宿让你心旷神怡位于山脚下的这家民宿,四周绿意盎然,空气清新。内部装饰典雅温馨,特色设施一应俱全,为你打造轻松愉悦的度假体验。在这里,您将找到久违的宁静和安逸,将疲惫抛诸脑后,重拾心灵的平静和宁谧。



























联系我们
更多
联系我们
更多
联系我们
更多

Copyright 2023 广东鑫诺家具实业有限公司 版权所有  粤ICP备19018250号-4

友情链接:www.gdsinode.com  

本站部分图片来源互联网,如有侵权请速告知,我们将会在24小时内删除


  • 电话直呼

    • 400-966-1655
  • 客服微信

技术支持: 亿川科技 | 管理登录
seo seo