详细内容

无锡观水酒店民宿

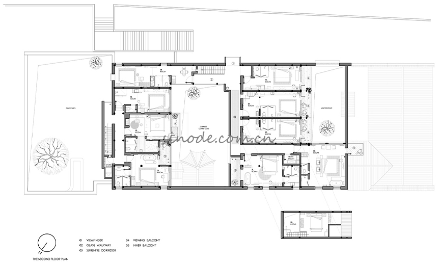
无锡挚舍·南禅观水酒店位于无锡市清名桥历史街区,占地面积约1200多平方米。
挚舍·南禅观水 执子之手, 与子偕老 , 挚爱之心,守爱之舍,假如有一天,你从远方归来,你曾踩着春风上路,也在秋风中温习,你沧桑也稚嫩,那些美好的时光,总是一半珍藏,一半流失 。你放慢脚步,在人文美学的旅居空间,享受一个静静的清晨和黄昏,体现的是一种城市民宿文化,设计师认为民宿出采于细节,用心极其考究,每个房间都有自己的风格和故事。酒店规划(客房,水景庭院,咖啡厅,品茗玻璃房,文藏空间,小戏台),设计风格:传承古建筑精髓,融入现代解构主义设计风格。













平面图:









联系我们
更多
联系我们
更多
联系我们
更多

Copyright 2023 广东鑫诺家具实业有限公司 版权所有  粤ICP备19018250号-4

友情链接:www.gdsinode.com  

本站部分图片来源互联网,如有侵权请速告知,我们将会在24小时内删除


  • 电话直呼

    • 400-966-1655
  • 客服微信

技术支持: 亿川科技 | 管理登录
seo seo