|
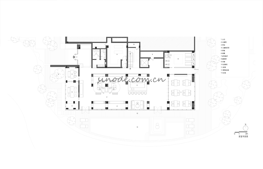
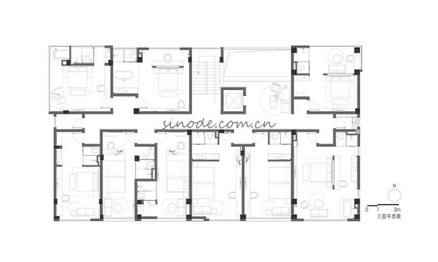
海口隐墅名宿“菩墅”位于海南省海口市,紧邻美兰国际机场,原先为一栋私人别墅。作为改造项目,原有的建筑格局已不适合新的空间使用要求,我们在原有的建筑结构框架限定中,重新规划功能空间、流线以及节奏,用来满足新的使用需求。 半地下室作为公共活动空间,原本错综复杂的结构柱网及管线让本身并不高的空间显得更加压抑,我们试图找到一种简单的方式,解决高度问题的同时让原本零碎的空间得到有效整合。 墙体被合理的拆除或保留,打开空间的同时增加半透的隔断来对空间格局进行分割,通过简单朴素的设计手法拉近室内外的距离,模糊室内外关系间的界限。 弧形拱元素的置入,让原本生硬的空间变得柔和,纵向给开放型布局带来仪式感,横向给不同的功能形成各自的区域感。
|




















