详细内容

宜兴松楼艺宿

宜兴松楼艺宿·民宿位于中国著名陶都宜兴,坐落于风景秀丽的阳羡旅游度假区中的龙池山风景区。周围翠竹莺歌,群山环绕。

宜兴松楼艺宿·民宿的建筑由极简构成,是一座清爽的小白楼。院子进门流水潺潺,清新幽静,院内树木郁郁葱葱,鸟语花香。
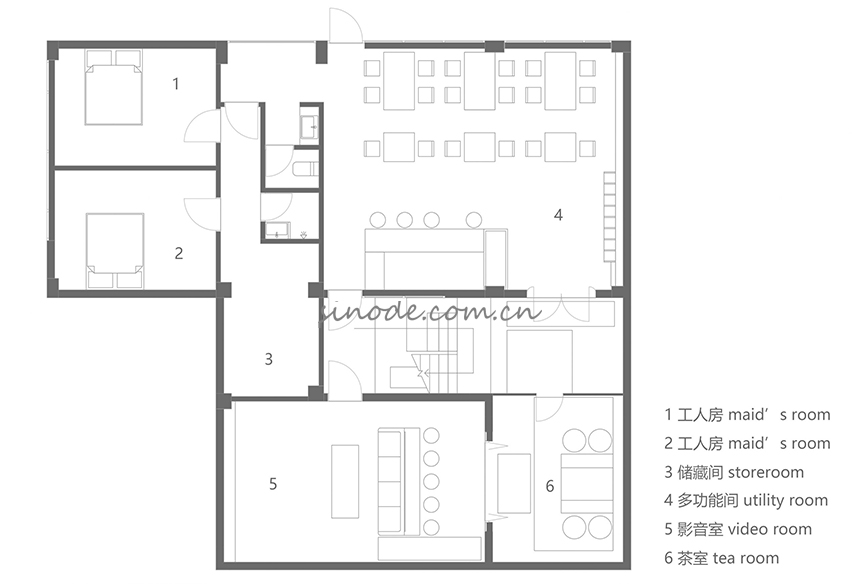
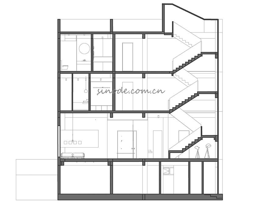
一层是接待大厅,以书吧茶艺为主,阳光通透,竹音飒飒,品茗闲谈。二楼三楼分别是7间分布独立、风格迥异的客房,“探溪”“沐阳”“摇竹”等每个房间都有一个别致的名字与对应的景观,给你带来不同的体验。房间配有全景落地窗,室外山景一览无遗,窗前独立浴缸,享受边沐浴变赏景的美妙时光。三层的每个房间也都配置了独立的阳台,顶层是露天式空中花园,是聚会、派对的好场所。负一楼为多功能厅、卡拉OK、影视厅、娱乐室。
户外设无边泳池。所有房间配备高档的硬件设施:汉斯格雅飞雨花洒龙头、杜拉维特卫生洁具、戴森吹风机、洲际酒店御用洗漱品牌Agraria、美国慕思乳胶床垫以及星际酒店床品。


















平、剖面图:











联系我们
更多
联系我们
更多
联系我们
更多

Copyright 2023 广东鑫诺家具实业有限公司 版权所有  粤ICP备19018250号-4

友情链接:www.gdsinode.com  

本站部分图片来源互联网,如有侵权请速告知,我们将会在24小时内删除


  • 电话直呼

    • 400-966-1655
  • 客服微信

技术支持: 亿川科技 | 管理登录
seo seo